ID
989972
Тип квартири
Новобудова
К-сть кімнат
1
Площа
48.9м²
Поверх
10/10
Стан
Зданий сирець
Район
Пасічна
Вулиця
Галицька
Населений пункт
м. Івано-Франківськ
Забудовник
M Group Development
ЖК
River Park
Опалення
Індивідуальне
Матеріал стін
Цегла
$33 500
$685/м²
Продаж 1к квартира Рівер Парк II
Продаж 1к квартира новобудова
З чудовим виглядом на місто.
Вул. Галицька відразу за мостом, біля річки. До центра міста 5-10 хв.
Жк Рівер Парк II
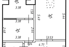
Площа 48.9м2
Поверх 10/10 ліфт працює.
Квартира мансардного типу, з перспективним плануванням.
Висота стелі кухня 2.75
Кімнати найнижча 1.40, найвища 3.50.
Вікна металопластикові
Будинок цегляний, перекриття залізобетонні.
Двір закритого типу.

ЗВʼЯЗОК З МЕНЕДЖЕРОМ
Христина Чумак
+380 (99) 119 76 81

