ID
283519
Тип квартири
Новобудова
К-сть кімнат
2
Площа
64.4м²
Площа кухні
10м²
Поверх
4/8
Стан
Сирець
Район
Центр
Вулиця
Левицького
Населений пункт
м. Івано-Франківськ
Забудовник
Вамбуд
ЖК
Бульвар Європейський
$130 000
$2 019/м²
ВИДОВА 2-кімнатна квартира преміум-класу в ЖК "Європейський Бульвар"
Продається стильна 2 кім. квартира на березі Міського Озера, в престижному житловому комплексі "Європейський Бульвар", центральна частина міста.
Житловий Комплекс клубного типу, високого рівня комфорту, з закритою територією для авто та сторонніх, з паркінгом та стильним ландшафтним дизайном.
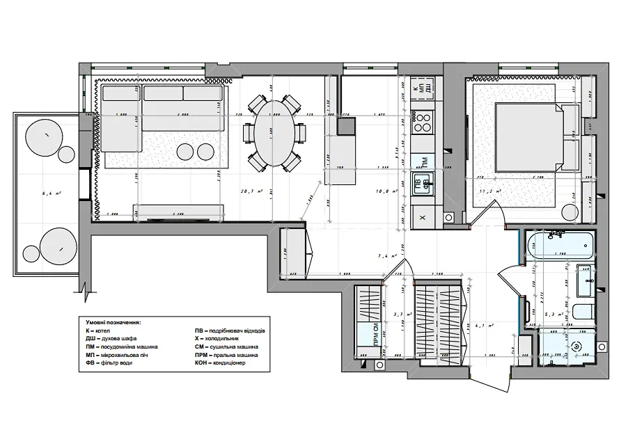
Загальна площа квартири - 64.4 м2, розташована на 4 м2 поверсі.
Переваги квартири:
- Панорамний вид на Міське Озеро;
- Висота стелі 3 м2, відчуття простору та світла;
- Будівництво з використанням якісних матеріалів за сучасними технологіями;
- Тепла підлога у всіх мокрих зонах;
- Продумане та функціональне планування: зонована кухня, простора зала-вітальня 20.7м2 з виходом на терасу, затишна спальня, просторий санвузол, окрема гардеробна;
- Тераса 6.4 м2 з прямим видом на Озеро.
Готовий дизайн-проєкт в подарунок!!!
Локація: Центральна частина міста, рекреаційна та відпочинкова зона, прогулянки біля міського Озера в пішій доступності 1 хв, 10 хв. до Парку Шевченка, тиша та престиж у поєднанні з міською інфраструктурою центру міста.

ЗВʼЯЗОК З МЕНЕДЖЕРОМ
Ольга Івахненко
+380 (50) 960 73 13

